top of page
Create Your First Project
Start adding your projects to your portfolio. Click on "Manage Projects" to get started
Brunsworth
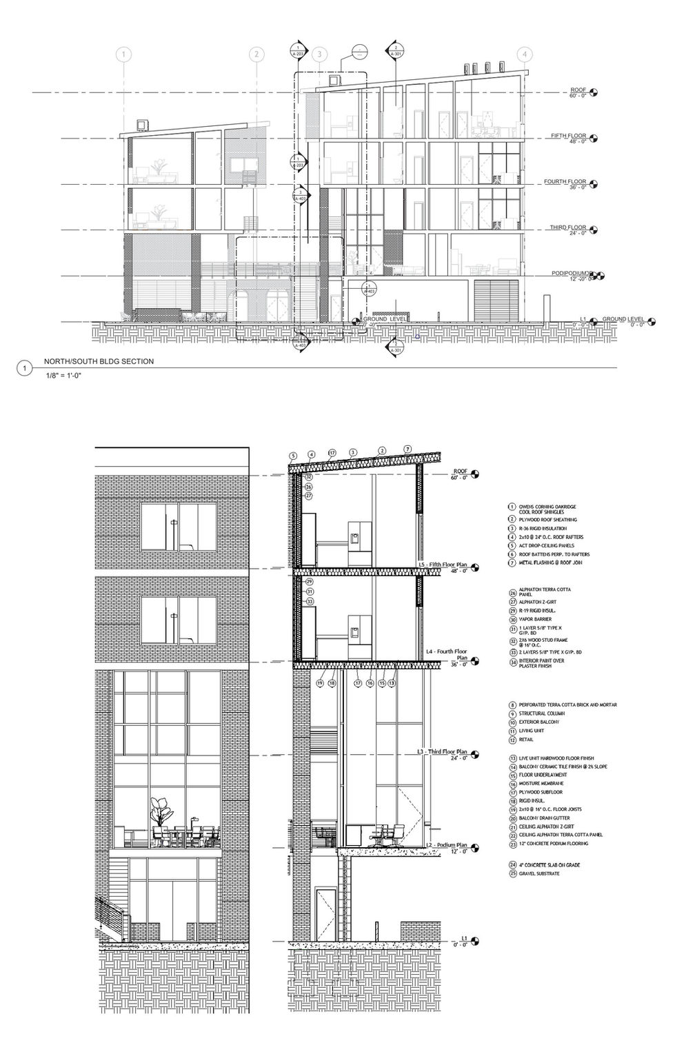
A mixed residential and retail development - 30 total residential units with 7 live work spaces on the ground floor. Designed during the technical housing studio and conceptualized to a high degree of detail
All illustrations were conceptualized in Rhino, modeled entirely in revit, renderings produced in Vray, Post Production in Photoshop and Illustrator.




















bottom of page